Suzuki GSX-R 750 SRAD - Aufbau einer WSBK Legende
Der Bereich für Eure Projekte, Um- und Aufbauten. Auch Tips und Tricks zu Feinheiten, aber keine Standardthemen wie: so wechselte ich die Bremsbeläge.
- Lion #87 Offline
- Beiträge: 179
- Registriert: Mittwoch 19. Mai 2021, 07:54
- Motorrad: Suzuki GSX-R 750
- Lieblingsstrecke: Schleiz
Re: Suzuki GSX-R 750 SRAD - Aufbau einer WSBK Legende
Kontaktdaten:
Ein Licht am Ende des Tunnels ist in Sicht. Es gab noch ein paar finale Änderungen an den Plänen und das Material ist ENDLICH da.
Jetzt geht der Auftrag in kürze in die Produktion. Daumen drücken, dass alles klappt. Als Bremssattel habe ich mich für einen Brembo P32G entschieden (Originalteil der RSV Mille). Ich hoffe damit wird das hydraulische Verhältnis endlich passen.
Außerdem habe ich eine Grundplatte für den Sitz entworfen, die ich bei Keller Jr. aka Enrico in Auftrag geben werde. Das wird zweifellos super!
Jetzt geht der Auftrag in kürze in die Produktion. Daumen drücken, dass alles klappt. Als Bremssattel habe ich mich für einen Brembo P32G entschieden (Originalteil der RSV Mille). Ich hoffe damit wird das hydraulische Verhältnis endlich passen.
Außerdem habe ich eine Grundplatte für den Sitz entworfen, die ich bei Keller Jr. aka Enrico in Auftrag geben werde. Das wird zweifellos super!
Always try to get faster!
#CSBK #87 #GSXR #SRAD
#CSBK #87 #GSXR #SRAD
- Lion #87 Offline
- Beiträge: 179
- Registriert: Mittwoch 19. Mai 2021, 07:54
- Motorrad: Suzuki GSX-R 750
- Lieblingsstrecke: Schleiz
Re: Suzuki GSX-R 750 SRAD - Aufbau einer WSBK Legende
Kontaktdaten:
Das Heck ist angepasst und der "Mustersitz" aufgelegt.
Always try to get faster!
#CSBK #87 #GSXR #SRAD
#CSBK #87 #GSXR #SRAD
- Lion #87 Offline
- Beiträge: 179
- Registriert: Mittwoch 19. Mai 2021, 07:54
- Motorrad: Suzuki GSX-R 750
- Lieblingsstrecke: Schleiz
Re: Suzuki GSX-R 750 SRAD - Aufbau einer WSBK Legende
Kontaktdaten:
Auch die kleinen Dinge brauchen etwas Arbeit.
Inspiriert von der Ausführung am SERT Bike habe ich für den Bremsflüssigkeitsausgleichsbehälter einen Halter mit Schnellverschluss entworfen.
Hergestellt aus 2mm Alublech, das "locker" in der Klemmung vom Lenkerstummel sitzt und durch einen Gummi O-Ring wackelfrei an Ort und Stelle bleibt. Als Aufnahme habe ich einen meiner Tank-Schnellverschlüsse umgebaut.
Hier noch ein Vergleichsbild zwischen dem GSX-R 1000 K5 Bremssattel (38mm Kolben) und dem neuen Brembo P32G Bremssattel (Aprilia RSV Mille 32mm Kolben).
Inspiriert von der Ausführung am SERT Bike habe ich für den Bremsflüssigkeitsausgleichsbehälter einen Halter mit Schnellverschluss entworfen.
Hergestellt aus 2mm Alublech, das "locker" in der Klemmung vom Lenkerstummel sitzt und durch einen Gummi O-Ring wackelfrei an Ort und Stelle bleibt. Als Aufnahme habe ich einen meiner Tank-Schnellverschlüsse umgebaut.
Hier noch ein Vergleichsbild zwischen dem GSX-R 1000 K5 Bremssattel (38mm Kolben) und dem neuen Brembo P32G Bremssattel (Aprilia RSV Mille 32mm Kolben).
Always try to get faster!
#CSBK #87 #GSXR #SRAD
#CSBK #87 #GSXR #SRAD
- Lion #87 Offline
- Beiträge: 179
- Registriert: Mittwoch 19. Mai 2021, 07:54
- Motorrad: Suzuki GSX-R 750
- Lieblingsstrecke: Schleiz
Re: Suzuki GSX-R 750 SRAD - Aufbau einer WSBK Legende
Kontaktdaten:
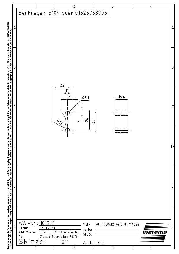
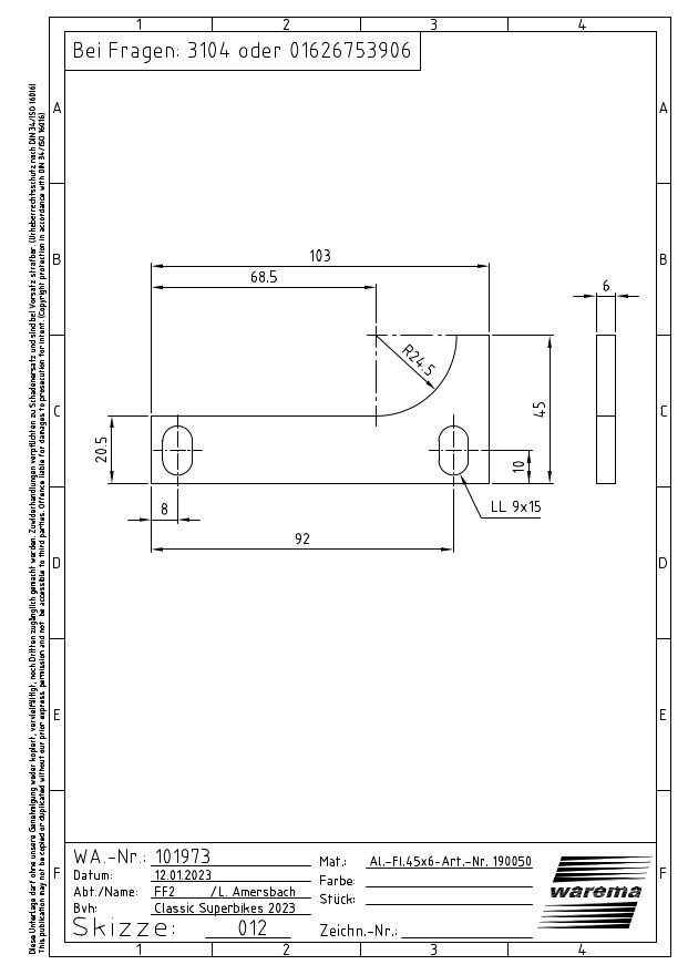
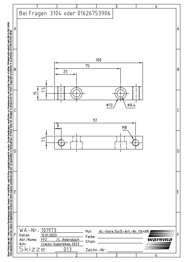
Leider mit einer ziemlichen Verzögerung sind die Frästeile jetzt endlich fertig!
Im Lauf der nächsten Woche kann ich also endlich das Fahrgestell fertig zusammenbauen (falls ich keine Messfehler gemacht habe - Daumen drücken!)
Achse mit Pullcap von Racemodeparts
Kontermutter für die Hinterachse - genau eingepasst in den Gilles Kettenspanner
Bremssattelträger für K5 Schwinge mit Bohrabstand für Brembo Bremssättel
Die Rampe passt genau für die neuen Raddistanzen, welche genau auf Höhe der Achsbohrung einrasten. So wird der Radwechsel zum Vergnügen!
Im Lauf der nächsten Woche kann ich also endlich das Fahrgestell fertig zusammenbauen (falls ich keine Messfehler gemacht habe - Daumen drücken!)
Achse mit Pullcap von Racemodeparts
Kontermutter für die Hinterachse - genau eingepasst in den Gilles Kettenspanner
Bremssattelträger für K5 Schwinge mit Bohrabstand für Brembo Bremssättel
Die Rampe passt genau für die neuen Raddistanzen, welche genau auf Höhe der Achsbohrung einrasten. So wird der Radwechsel zum Vergnügen!
Always try to get faster!
#CSBK #87 #GSXR #SRAD
#CSBK #87 #GSXR #SRAD
- Lion #87 Offline
- Beiträge: 179
- Registriert: Mittwoch 19. Mai 2021, 07:54
- Motorrad: Suzuki GSX-R 750
- Lieblingsstrecke: Schleiz
Re: Suzuki GSX-R 750 SRAD - Aufbau einer WSBK Legende
Kontaktdaten:
Beim ersten ranstecken siehts schonmal super aus. An der Bremsscheibe ist es relativ eng aber das schaue ich mir nochmal an, wenn die Schwinge komplettiert und eingebaut ist. 
Always try to get faster!
#CSBK #87 #GSXR #SRAD
#CSBK #87 #GSXR #SRAD
- Lion #87 Offline
- Beiträge: 179
- Registriert: Mittwoch 19. Mai 2021, 07:54
- Motorrad: Suzuki GSX-R 750
- Lieblingsstrecke: Schleiz
Re: Suzuki GSX-R 750 SRAD - Aufbau einer WSBK Legende
Kontaktdaten:
Und hier die fertig montierten Teile. Eine kleine Modifikation braucht die Schwinge noch, dann kommt die wieder rein. 
Always try to get faster!
#CSBK #87 #GSXR #SRAD
#CSBK #87 #GSXR #SRAD
- Lion #87 Offline
- Beiträge: 179
- Registriert: Mittwoch 19. Mai 2021, 07:54
- Motorrad: Suzuki GSX-R 750
- Lieblingsstrecke: Schleiz
Re: Suzuki GSX-R 750 SRAD - Aufbau einer WSBK Legende
Kontaktdaten:
Auch an anderen Fronten geht es voran. Die Uhr tickt ja langsam für das AER nächste Woche...
Die Elektrik wird ab jetzt in einer geschlossenen Aluwanne aus 1mm Blech verstaut.
Sitzgrundplatte und Tachohalter wurden ebenfalls aus Alu ausgelasert.
Die Elektrik wird ab jetzt in einer geschlossenen Aluwanne aus 1mm Blech verstaut.
Sitzgrundplatte und Tachohalter wurden ebenfalls aus Alu ausgelasert.
Always try to get faster!
#CSBK #87 #GSXR #SRAD
#CSBK #87 #GSXR #SRAD
- Lion #87 Offline
- Beiträge: 179
- Registriert: Mittwoch 19. Mai 2021, 07:54
- Motorrad: Suzuki GSX-R 750
- Lieblingsstrecke: Schleiz
Re: Suzuki GSX-R 750 SRAD - Aufbau einer WSBK Legende
Kontaktdaten:
Um das Beziehen des Sitzes hat sich unser Meister der Stoffe und Fäden Manuel Keller, bändiger der Blauen Elise (TM) gekümmert.
Ich kann es nicht erwarten, mich auf dieser wunderschönen Arbeit niederzulassen.
Ich kann es nicht erwarten, mich auf dieser wunderschönen Arbeit niederzulassen.
Always try to get faster!
#CSBK #87 #GSXR #SRAD
#CSBK #87 #GSXR #SRAD
- Lion #87 Offline
- Beiträge: 179
- Registriert: Mittwoch 19. Mai 2021, 07:54
- Motorrad: Suzuki GSX-R 750
- Lieblingsstrecke: Schleiz
Re: Suzuki GSX-R 750 SRAD - Aufbau einer WSBK Legende
Kontaktdaten:
Auch die Unangenehmen Dinge müssen früher oder später erledigt werden. Für mich wäre das das Lackieren...
Ich bin zwar noch nicht ganz fertig aber hier mal ein paar Bilder des aktuellen Vorgangs.
Plan ist morgen die Lackierung fertig zu stellen.
Ich bin zwar noch nicht ganz fertig aber hier mal ein paar Bilder des aktuellen Vorgangs.
Plan ist morgen die Lackierung fertig zu stellen.
Always try to get faster!
#CSBK #87 #GSXR #SRAD
#CSBK #87 #GSXR #SRAD
- Lion #87 Offline
- Beiträge: 179
- Registriert: Mittwoch 19. Mai 2021, 07:54
- Motorrad: Suzuki GSX-R 750
- Lieblingsstrecke: Schleiz
Re: Suzuki GSX-R 750 SRAD - Aufbau einer WSBK Legende
Kontaktdaten:
Always try to get faster!
#CSBK #87 #GSXR #SRAD
#CSBK #87 #GSXR #SRAD